Un lieu réinventé
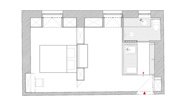
Dans cette ancienne cellule d’habitation, à l’aspect austère voire spartiate, autrefois habitée par une religieuse, l’architecte Laurence Chéret a aménagé un lieu de vie compact et optimisé comme une cabine de bateau. Pour rationnaliser l’espace et favoriser sa fonctionnalité, elle a conçu des éléments de mobilier qui délimitent en trois séquences spatiales l’appartement : depuis l’entrée, en premier lieu, elle a créé le bloc technique des pièces d’eau, ensuite l’espace à vivre puis la chambre. Un meuble haut fait office de séparation entre ces deux dernières séquences. Les meubles offrent un esprit double face, en déterminant l’usage des pièces : banquette et rangements hauts côté pièce à vivre et cuisine, armoire côté passage entre les deux pièces, tête de lit et bibliothèque coté chambre et bureau. Et la tablette à proximité de la banquette comme le miroir sur l’armoire sont autant de détails qui participent au confort du lieu et à son autonomie.

©Cyrille Lallement
Les contraintes techniques
L’architecte a mis un point d’honneur à rendre invisible la technique. Elle a utilisé tous les aménagements à sa disposition pour la dissimuler. Des passe-câbles ont été insérés dans tous les meubles. Les appliques et les prises ont été installées de façon ergonomique pour éviter les fils électriques anarchiques. Ainsi une prise électrique installée dans l’alcôve de la banquette permet de connecter tous les appareils numériques. Et tous les éléments techniques et la tuyauterie ont été cachés, sous le faux plancher ou sous le plan vasque de la salle de bains, dans le placard de l’entrée et les socles du mobilier.

©Cyrille Lallement
Un espace particulier
Pour créer l’illusion d’un grand appartement dans un petit espace, il a aussi fallu jouer avec les pentes du toit qui réduisaient l’espace en hauteur et font perdre 3 m² par rapport à la surface au sol. Le chantier a duré deux mois et le budget (mobilier compris) s’est limité à 40 000 €. L’accès à cet appartement était réduit à un escalier étroit. Par conséquence, il a fallu monter et assembler tous les éléments d’aménagement sur place. Un inconvénient qui a été étudié en amont du projet…

©Cyrille Lallement
Renseignements :
Hors-Champs
Laurence Chéret, architecte dplg
16, rue Eugène Carrière
75018 Paris
Tél. : 06 24 44 55 38
Mail : contact@hors-champs.com
www.hors-champs.com

©DR

©DR

©Cyrille Lallement

©Cyrille Lallement

©Cyrille Lallement

©Cyrille Lallement

©Cyrille Lallement

©Cyrille Lallement

©Cyrille Lallement

©Cyrille Lallement

©Cyrille Lallement













Ajouter un commentaire